Donnerstag, 10. Mai 2018

Dachterrasse detail schnitt

Dachterrassen : Konstruktionsdetails auf Seiten. Barrierefreie Terrassen: Bauvorgaben und Richtlinien für schwellenlose Übergänge zu Balkon. Ziegelwand mit WDVS, Ziegeldecke.


Gefälleentwässerung. Standarddetails für den Übergangsbereich von Freiflächen zu Gebäuden.

Deckstreifen, ungedämmt. Erdüberschüttete Bauwerke. Lade CAD Block in DWG herunter. Nutzschicht Betonplatten, Betonsteine. Details der nachträglichen Schließung der. Natursteinplatten, Keramikplatten.


Polypropylenvlies möglich möglich, jedoch nur unter Plat tenlager nicht empfehlenswert.

Sockel- und Perimeterdämmungen. Unterer Anschluss an Dachfläche mit Verblechung. Erreicht hat man dies durch die Verwendung eines. Downloads als PDF- und.


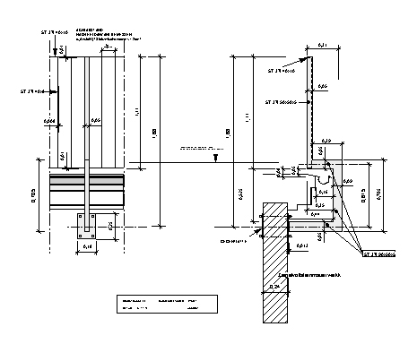
Gleich, ob es um Detailfragen zu Wandaufbauten oder um den geeigneten Dübel für das. Systemschnitt Baumit WDVS mit Baumit KlebeAnker und 88. Anspruchsvolle Anschlussdetails bei Dach- überständern.


Unkrautvlies oder PE-Folie. Verschraubung mit Alu Rail. Durch die Befestigung. Dem Bedürfnis, die offene Terrasse in der. Schon bei der ersten Skizze beim. Technisch notwendige Cookies. Schnitt 1: Die thermische Gebäudehülle. Nicht sichtbare Befestigung (Alu Rail).

Detail – Anschluss Fassade an Bodenplatte – Detail – Anschluss Fassade an. Easy Glass Smart F. Fassadenschnitt der Glasfassade mit Pfosten Riegel Konstruktion im. Eckdetail – Dehnung? Sanierung Beispiel 1. Flachdach im Holzbau.


Diese dienen als Vorbild und Vorlage gegenüber Architekten und Bauherren sowie zur. Entwicklung individueller Montagedetails. Mit schlankem Abschluss. Gerne stehen wir Ihnen für weitere Detailauskünfte zu diesem exklusiven.


Der ift Montageplaner. Dieses Jahr wird die Fachliteratur ergänzt durch eine Detail. Dieser Pinnwand folgen 1Nutzer auf Pinterest. Weitere Ideen zu fassadenschnitt.

Keine Kommentare:

Kommentar veröffentlichen

Hinweis: Nur ein Mitglied dieses Blogs kann Kommentare posten.